
Multi-Purpose ComplexOjective: To Build a Mult-purpose complex to house a Post Office, Money Transfer, Police Sub-Station, Museum and Library/Information Center.
Now that the Spring Village Healt Clinic is built, it's time to move on to our next project. It is designed by one of our own, Architect and Civil Engineer Garfield Francis who also did the original design for the Spring Village Health Clinic. Significant contribution to the design and specifications was also made by our own Patrick Pinnoch Builder and Construction Engineer.
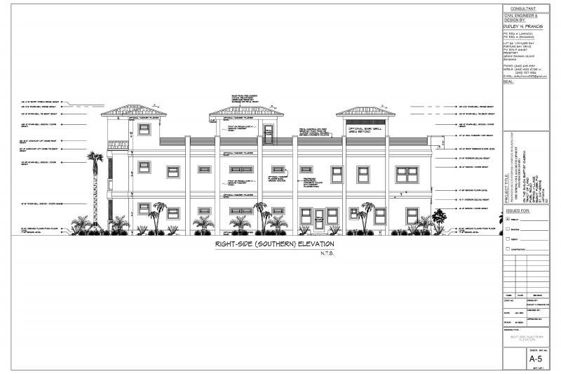
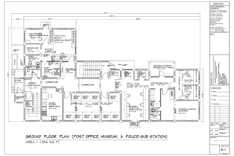
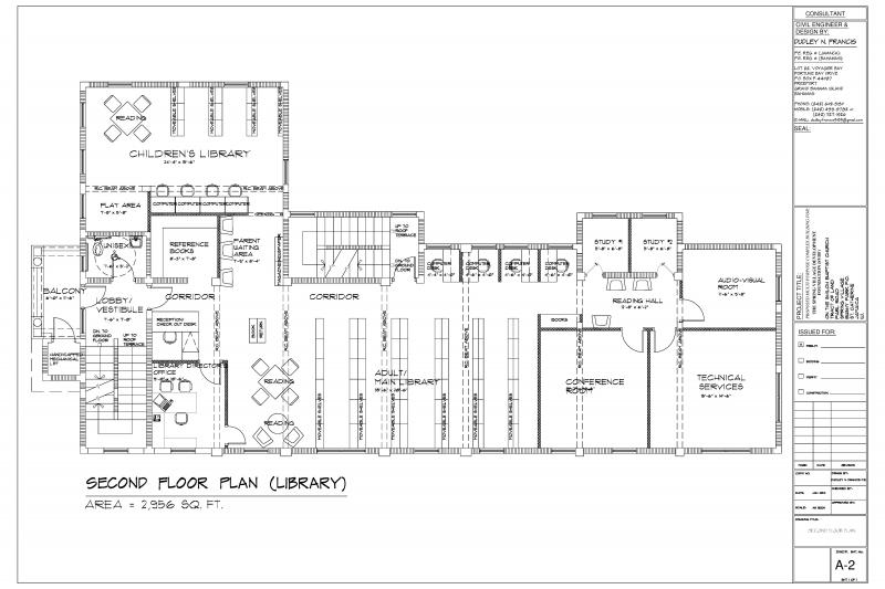
The project is a Multipurpose Complex comprising of a Post Office, Money Transfer, Police Sub-Station, Heritage Museum and Library. The Rooftop will be a terrace for social events.
This will be accomplished through public and private partnerships.
Throughout the years Spring Village has become a hub for surrounding communities and therefore as our community continues to grow, these amenities become more of a necessity.
The proposed site is across the street from the Shiloh Baptist Church since it is the most central location in the village.
It can be done. "If God opens the door Let's walk through it!"
Drawings
Click to Enlarge Images
Top of Site

Front View

Side View

Ground Floor

Second Floor

Terrace (Third Floor)


Links:
Copyright 2012 The Spring Village Website. All rights reserved.